| Característica | Un. | HN 3.0 | |||
|---|---|---|---|---|---|
| Carac.Principal | |||||
| Capacidade (teórica) | m³/h | 150,00 | |||
| Silo de agregados | |||||
| Capacidade total | m³ | 180,00 | |||
| Quantidade de agregados | 5 | ||||
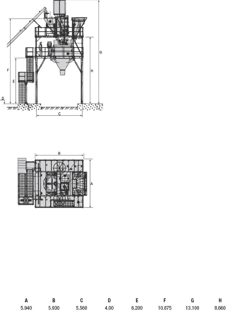
| Tipo | De perfil elevado, com transporte de agregados por skip | ||||
| Silo de cimento | |||||
| Altura de descarga | mm | 0,00 | |||
| Capacidade - Silo | m³ | 80,00 | |||
| Dosador de água | |||||
| Capacidade | l | 1.200,00 | |||
| Sistema de dosagem | Pesagem | ||||
| Misturador | |||||
| Capacidade - Misturador | m³ | 3,00 | |||
| Tempo de mistura | s | 30,00 | |||
| Tipo - Misturador | Duplo eixo horizontal | ||||
| Informações Complementares | |||||
| Capacidade da balança de agregados | kg | 7.500,00 | |||
| Capacidade da balança de cimento | kg | 1.200,00 | |||
| Código Finame | 2459790 | ||||
| Dosador de aditivos | Sim | ||||
| País de origem | Brasil | ||||
| Potência necessária | KVA | 400,00 | |||
| Preço de Referência | R$ | 0,00 | |||
| Sistema de controle automático | Sim | ||||
| Sistema de pesagem | Cumulativo ou individual | ||||
| Tempo de dosagem | s | 120,00 | |||
| Tipo de central | Fixa | ||||
Av. Francisco Matarazzo, 404 Cj. 701/703 Água Branca - CEP 05001-000 São Paulo/SP
Telefone (11) 3662-4159
© Sobratema. A reprodução do conteúdo total ou parcial é autorizada, desde que citada a fonte. Política de privacidade